Ver Tour Virtual
- $12,240,040.63 En Venta
- 352.46 m² de construcción
- 2 Estacionamientos
Detalles
- Tipo: Local comercial
- ID: EB-UK9072
- Antigüedad: A estrenar
- Piso: ground_floor
- Asesor: Alberto Valdez
Descripción
Local comercial ubicado en una torre con uso de suelo mixto, que promueve una vida cosmopolita bajo el concepto ALL IN ONE, reuniendo en un solo lugar las mejores opciones de inversión inmobiliaria
Cuenta con excelente ubicación, muy cerca de:
-A 4.5 km de Plazas comerciales como Galerìas y Harbour, restaurantes, bancos, gimnasios, cines, etc
-A 3.5 km de Paseo Montejo
-A3.5 km de Montebello
-a 4 km de Plaza Altabrisa y UPTOWN
-A 3.6 KM de City Center
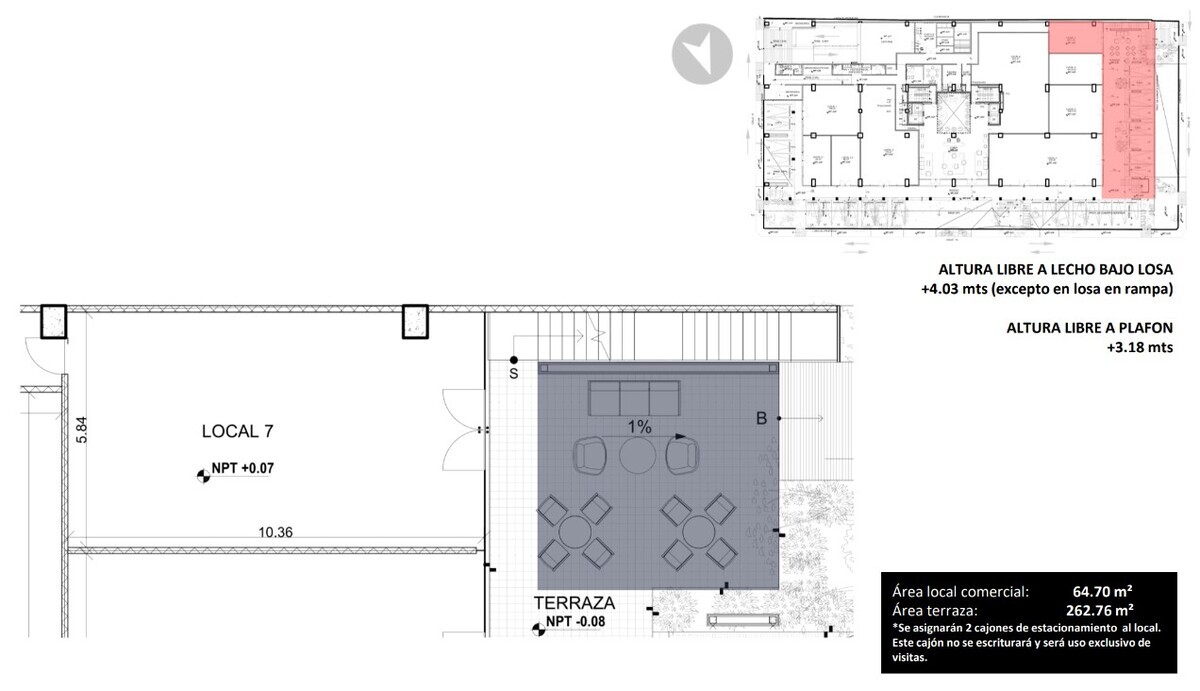
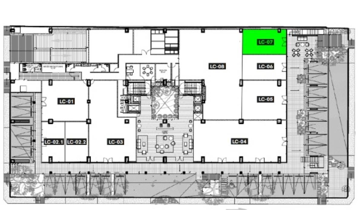
-PLANTA BAJA LC 07
-cuenta con 64.70 m2
-terraza 262.76 m2 Total m2: 356.42
CARACTERÌSTICAS
-Acabados en piso: Firme a base de concreto acabado final aparente.
-Acabados en muros: Columna de concreto armado, cálculo según estructurista con acabado final aparente.
-Muros divisorios de tablaroca de 7 cms de espesor con acabado final aparente.
-Acabados en plafón: Losa de concreto reforzada, según cálculo estructural, acabado final aparente.
-Fachada exterior: Cancel exterior formado por fijos de vidrio de 6 mm de espesor
Precio:
$12,240,040.63 SIN IVA .
FORMAS DE PAGO
-Enganche: $3,060,010.16
-Saldo contra escritura $10,710,035.55
ENTREGA: Diciembre 2025
Se acepta RECURSO PROPIO o CRÈDITO BANCARIO
Amenidades
- Estacionamiento techado
- Facilidad para estacionarse
- Terraza
- Circuito cerrado
- Elevador
- Planta Baja
Ubicación













